高校综合教学楼设计(结构方案:钢结构)毕业论文
2020-02-18 10:00:26
摘 要
本次毕业设计的题目为高校综合教学楼设计(结构方案:钢框架结构),目的是将我们在本科阶段所学内容进行整理总结,并为今后的工作生活打好基础。在本次建筑设计的过程中,整个结构的核心内容有结构设计、荷载统计内力计算、内力组合、构件设计、楼梯设计,基础设计等。在本次设计的过程中将会使用到PKPM,结构力学求解器,CAD等计算机软件进行设计计算,数据求解和软件绘图。同时我们也会用到4年来所学知识进行建筑设计和结果验算。经过这3个多月的努力工作,我们独立,完整的完成了本次设计。同时我们也通过本次的毕业设计,将我们4年来的知识学以致用,成功的将理论与实践结合,对自身是一次很好的提升。
关键词:建筑设计;教学楼;钢框架结构
Abstract
The title of this graduation project is the comprehensive teaching building design of colleges and universities (structural scheme: steel frame structure). The purpose is to summarize what we have learned in the undergraduate stage and lay a good foundation for our future work and life. In the process of this architectural design, the core content of the whole structure includes structural design, load statistics calculation of internal force, internal force combination, component design, stair design, foundation design and so on. In this design process, PKPM, structural mechanics solver, CAD and other computer software will be used for design calculation, data solution and software drawing. At the same time, we will also use the knowledge learned in the past 4 years for architectural design and result checking. After more than three months of hard work, we completed the design independently and completely. At the same time, through this graduation project, we put our knowledge of the past four years into practice and successfully combined theory with practice, which is a good promotion for ourselves.
Key Words:The architectural design ;Teaching Building ;Steel frame structure
目 录
第1章 绪论 1
第2章 设计参数 2
2.1梁、柱截面尺寸 2
2.2永久荷载标准值 2
2.3活载标准值 3
2.4框架选取 3
第3章 荷载统计 5
3.1恒载、活载统计 5
3.2风荷载统计 8
3.3地震作用统计 10
第4章 内力计算 14
4.1内力计算方法 14
4.2内力计算结果 14
第5章 内力组合 27
5.1内力组合 27
第6章 构件截面设计 28
6.1.分组 28
6.1.1分组原则 28
6.1.2梁分组 28
6.1.3 柱分组 28
6.1.4节点分组 29
6.1.5组合值调整 30
6.2截面验算 30
6.2.1梁的验算(验算第三组柱是否满足要求) 30
6.2.2柱的验算(验算第三组柱是否满足要求) 32
6.2.3节点的设计 34
6.3其他梁、柱的验算 36
6.3.1第一、二组梁的验算 36
6.3.2第一、二组柱的验算 39
第7章 基础设计 44
7.1基础设计 44
7.1.1 工程地质勘察结果 44
7.1.2 符号说明: 45
7.2基础的设计方法 45
7.3基础尺寸设计及配筋计算 46
第8章 楼梯设计 51
8.1楼梯设计 51
8.1.1楼梯类型选择 51
8.1.2荷载和受力计算 51
8.1.3配筋面积计算 53
8.1.4配筋结果 54
参考文献 56
附录 57
致谢 58
第1章 绪论
毕业设计是对四年来所学理论知识和专业技能的一个总结回顾,并将其运用以解决实际问题。通过毕业设计这个过程,不仅会加深我们对所学知识的认识和理解,更能培养我们分析问题,处理问题的综合能力以及设计创新精神,也算是我们在走上工作岗位前对自己能力的一个测试。
通过毕业设计这个重要的教学环节,培养我们正确的理论联系实际的工作作风,严肃认真的工作态度,毕业设计对于培养学生初步的科学研究能力,提高其综合运用所学知识分析问题、解决问题能力有着重要意义。运用感性和理性知识去把握整个建筑的处理,包括建筑外观和结构两个方面。了解国内外建筑设计的发展的历史、现状及趋势,更多的关注这方面的学术动态,以及我们在以后的发展方向。同时积极、独立的完成本次毕业设计也是为今后的实际工作做出的必要的准备。
二十世纪九十年代以后,伴随着钢铁产业的跨越式发展,全社会对建筑钢结构的经济效益和社会效益的逐步认知,我国建筑技术的政策导向逐渐转变为发展推广钢结构的应用。我国建筑钢结构行业呈现持续和快速的增长势头,但与美国、日本等主要发达国家相比,我国建筑钢结构行业还存在较大的发展空间。而在澳大利亚、英国、加拿大、日本、美国、芬兰、法国、瑞典、丹麦等国家,均已形成了相当规模的产业化钢结构建筑体系。
其中澳大利亚使用了冷弯壁轻型钢结构建筑体系,美国则多使用多层轻钢结构体系,芬兰使用了轻钢龙骨结构体系和普通钢框架体系。而从设计规范来说,我国设计规范相对于欧美和日本在受压构件的长细比值上面要求更高,分类更严格。从工形截面受压构件和翼缘的最大宽度与其厚度比的限值来看,欧美和日本则要求更加严格,而在梁腹板受剪屈曲后的强度计算方面,国内外基本都使用了张力场理论,而欧美和日本规范在计算张力场的大小时也忽略了周边框架的作用,认为张力场仅锚固在横向加劲肋上。而我们则应该努力学习外国钢结构的发展来更好的发展我们国家的钢结构。
第2章 设计参数
2.1梁、柱截面尺寸
框架柱:H600×450×14×20
梁:主梁H550×450×18×24 次梁H500×400×16×20
板厚:120mm
材料强度:
混凝土c30级,受力钢筋采用HRB235钢筋,钢材Q235
具体设置见结构布置图
2.2永久荷载标准值
屋面永久荷载标准值
35mm厚架空隔热板:0.035×25=0.875kN/m2
防水层:0.4kN/m2
钢混现浇板:0.12×25=3kN/m2
20mm厚1:2.5水泥砂浆找平层:0.02×20=0.4kN/m2
12厚纸筋石灰粉平顶:0.012×16=0.192kN/m2
标准值: 4.87kN/m2
楼面永久荷载标准值
10mm面层20mm水泥砂浆打底水磨石地面:0.65kN/m2
120mm钢混现浇板:0.12×25=3kN/m2
标准值:3.65kN/m2
梁自重:
主梁:[(0.55-0.024×2)×0.018 2×0.024×0.45]×7850×10÷1000=2.40kN/m
次梁:[(0.5-0.02×2)×0.016 2×0.02×0.4]×7850×10÷1000=1.83kN/m
柱自重:[(0.6-0.02×2)×0.014 2×0.02×0.45]×7850×10÷1000=2.03kN/m
墙体自重:
内墙:
200mm加气混凝土砌块:0.2×7.5=1.5kN/m2
两层20mm水泥粗砂粉刷墙面:2×0.36=0.72kN/m2
内墙自重:2.22kN/m2
外墙:
240mm加气混凝土砌块:0.24×7.5=1.8kN/m2
25mm贴瓷砖墙面:0.5kN/m2
外墙自重:2.30kN/m2
2.3活载标准值
楼面活载[2]:教室:2.0kN/m2 楼道:3.5kN/m2
屋面活载:0.5kN/m2(不上人)
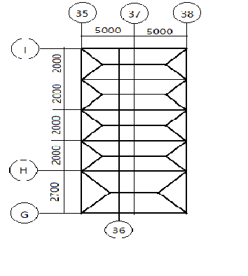
2.4框架选取

图2.1 框架计算简图
选取37为计算框架[3]
第3章 荷载统计
3.1恒载、活载统计
将楼板的恒、活荷载转化为四周梁的均布荷载,再将作用于纵向主梁和次梁的均布荷载计算得到在横向主梁的集中荷载,再加上墙重,梁柱自重。

图3.1.框架平面荷载传导图
恒载
屋面的均布荷载:4.87kN/m2
楼板的均布荷载:3.65kN/m2
梁自重的均布荷载:2.40kN/m
梁自重的集中荷载:2.40×5=12kN
次梁自重的集中荷载:1.83×5=9.15kN
墙自重的均布荷载:2.22×3.9=8.66kN
墙自重的集中荷载:2.22×3.9×5=43.29kN
柱自重的集中荷载:2.03×3.9=7.92kN
框架梁的线荷载:2.40kN/m
次梁的线荷载:1.83kN/m
将上图支承梁上的梯形或三角形荷载根据支座截面弯矩相等的原则换算为等效均布荷载进行统计可得框架恒载的荷载分布图。
Q1=5/8q‘ (3.1)
Q2=(1-2a2 a3)q‘ (3.2)
Q1——三角形荷载转化后的等效均布荷载
Q2——梯形荷载转化后的等效均布荷载
q‘——三角形或梯形荷载最大值
a——梯形荷载的梯形斜边与下底长度比值
经计算得:
恒载统计:
顶层:
最左边柱处集中荷载:Q=49.94kN
次梁处集中荷载:Q=54.35kN
中间柱处集中荷载:Q=60.4kN
最右边处集中荷载:Q=37.8kN
左部均布荷载;Q=5.44kN/m
右部均布荷载:Q=6.08kN/m
标准层层:
最左边柱处集中荷载:Q=48.37kN
次梁处集中荷载:Q=43.05kN
中间柱处集中荷载:Q=67.08kN
最右边处集中荷载:Q=41.47N
左部均布荷载;Q=13.34kN/m
右部均布荷载:Q=5.40kN/m

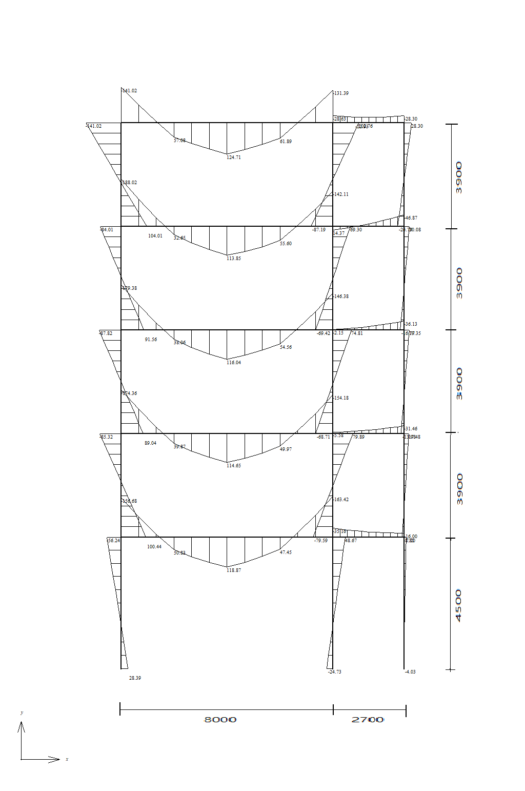
图3.2恒载统计图(kN,kN/m)
活载同恒载计算方法

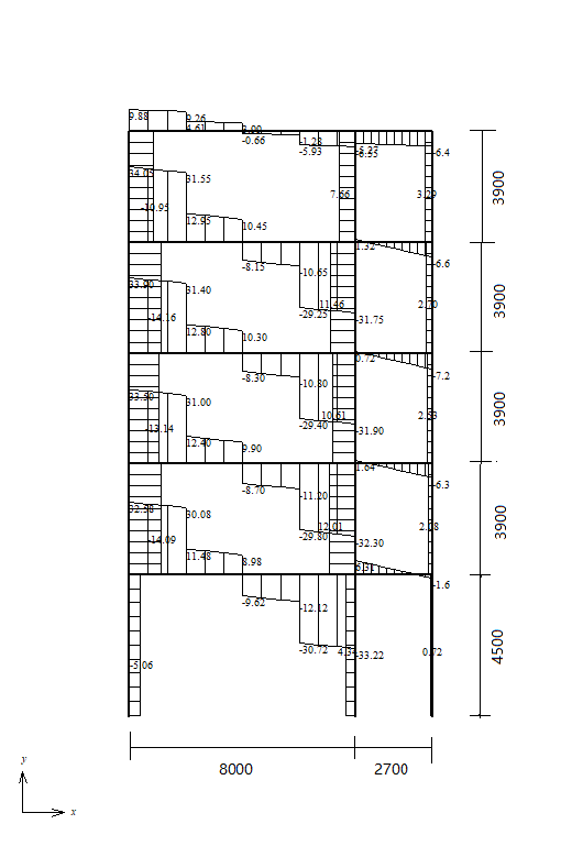
图3.3活载统计图(kN,kN/m)
3.2风荷载统计
基本风压ω0=0.40kN/m2
ωK=βzμsμzω0 (3.3)
ω0—基本风压值
μs—风载体型系数,
βZ—对应高度处的风振系数,取1.0
迎风面为0.8,
背风面-0.5,[4]
表3.1 风荷载分布计算表
层次 | βZ | μS | Z(m) | μZ | ω0(kN/m2) | A(m2) | Pi(kN) |
5 | 1.0 | 1.3 | 20.55 | 1.26 | 0.40 | 40.95 | 26.88 |
4 | 1.0 | 1.3 | 16.65 | 1.15 | 0.40 | 42.50 | 25.42 |
3 | 1.0 | 1.3 | 12.75 | 1.05 | 0.40 | 42.50 | 23.21 |
2 | 1.0 | 1.3 | 8.85 | 1.00 | 0.40 | 42.50 | 22.10 |
1 | 1.0 | 1.3 | 4.95 | 0.95 | 0.40 | 42.50 | 20.99 |

图3.4 风荷载统计图(kN)
3.3地震作用统计
建筑物总重力荷载代表值G
G5:
雪荷载:0.35kN/m2 活载:0.5kN/m2,计算时取活载。
屋面荷载:永久荷载:4.87×30×10.7=1563.27kN
1.3m女儿墙:1.3×2.36×(30 10.7)=124.87kN
梁自重:主梁:3×30×2.4 4×10.7×2.4=318.72kN
次梁:3×30×1.83=164.7kN
柱自重:20×2.03×3.9/2=79.17kN
墙自重:92×2.22×3.9/2=398.27kN
G5=2717.16kN
G4=G3=G2:
50%活载:0.5×(2.0×30×8 3.5×30×2.7)=381.75kN
楼面荷载:永久荷载:3.65×30×10.7=1171.65kN
梁自重:主梁:3×30×2.4 4×10.7×2.4=318.72kN
次梁:3×30×1.83=164.7kN
柱自重:20×2.03×3.9=158.34kN
墙自重:92×2.22×3.9=796.54kN
以上是毕业论文大纲或资料介绍,该课题完整毕业论文、开题报告、任务书、程序设计、图纸设计等资料请添加微信获取,微信号:bysjorg。
相关图片展示:









